CAMPIONE D'ITALIA TRILOCALE NUOVO CON BOX

In vendita
3 locali
Campione d'Italia
510.000 €
Descrizione
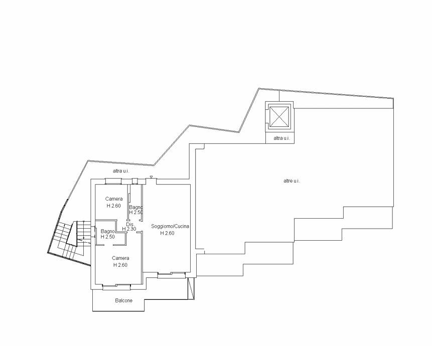
Proponiamo un trilocale moderno, luminoso e perfettamente organizzato, situato al primo piano di una palazzina recente. La proprietà si sviluppa su 85 m² interni e si apre verso un terrazzo di 17 m² con una splendida vista sul lago, uno spazio esterno ideale per vivere momenti di relax, pranzi all’aperto o semplicemente godersi la tranquillità del contesto.
L’ingresso conduce direttamente nella zona giorno, un ambiente ampio e contemporaneo con cucina e soggiorno in open space, caratterizzato da grandi aperture che garantiscono luce naturale durante tutto il giorno. Da qui si accede direttamente al terrazzo, creando una continuità tra interno ed esterno che valorizza ulteriormente gli spazi.
La camera padronale è un vero punto di forza: elegante, ben proporzionata e dotata di bagno en suite, offre anch’essa l’accesso diretto al terrazzo, regalando un risveglio con vista lago ogni mattina. La seconda camera, versatile e luminosa, si presta perfettamente come stanza ospiti, studio o camera per un figlio. Un secondo bagno completa la distribuzione interna.
L’appartamento è dotato di riscaldamento a pavimento e VMC (ventilazione meccanica controllata), garantendo comfort abitativo costante, qualità dell’aria e consumi ottimizzati. Viene venduto arredato con cucina completa, arredo della zona living e camera padronale, permettendo un ingresso immediato senza ulteriori investimenti.
La proprietà include una cantina, mentre un box singolo è disponibile separatamente al prezzo di 39.000 €. Sotto casa è inoltre possibile parcheggiare comodamente ulteriori auto, un vantaggio raro e prezioso nella zona.
La posizione, la vista, le finiture moderne e la qualità degli impianti rendono questa soluzione ideale per chi cerca una casa pronta da vivere, perfetta per frontalieri, coppie, investitori o come seconda residenza in un contesto esclusivo.
Caratteristiche principali
Codice:
Trilo Campione Nuovo
Città:
Campione d'Italia
Categoria:
3 locali
Locali:
3
Camere:
2
Bagni:
2
Mq:
85
Box:
1
Terrazzi:
1
mq Terrazzo:
10
Piano:
1
Classe energetica:
A3
Stato Immobile:
Nuovo
Grado:
Signorile
Panorama:
Vista Lago
Orientamento:
Nord Ovest Sud Est
Lati Liberi:
2
Arredi:
Arredato a Nuovo
Tipo Soggiorno:
Soggiorno
Tipo Cucina:
A Vista
Riscaldamento:
Conta Calorie
Tipo Riscaldam.:
Pompa di Calore
Tipo Impianto:
Pavimento
Infissi:
Alluminio Doppio Vetro
Accessori
Antifurto
Ascensore
Bagno Handicap
Cancello Elettrico
Doppi Vetri
Impianto Domotica
Impianto Fotovoltaico
Impianto Satellitare
Passaggio Automobilistico
Porta Blindata
Rete Dati
Tapparelle Elettriche
Tavolini Esterni
Video Citofono
Mappa
Via Posero, 2 - Campione d'Italia (CO)
Planimetrie
Cookie preference