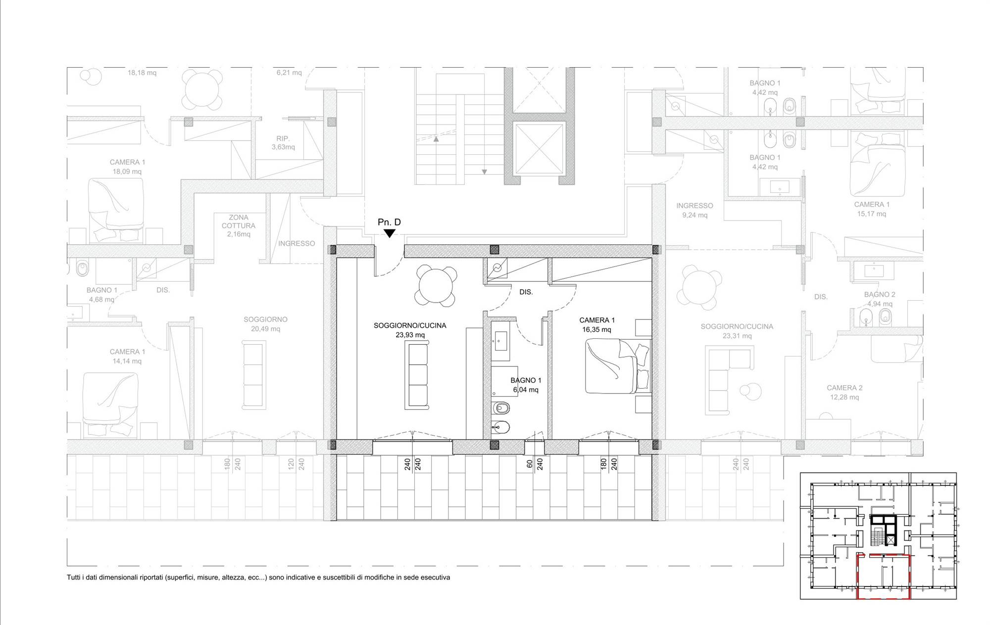
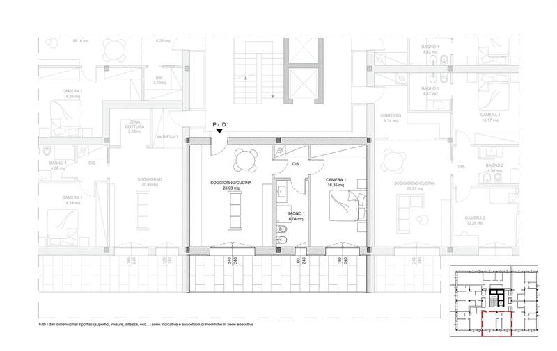
1 bedroom apartment for sale in Saronno

for sale
1 bedroom apartment
Saronno (Centro)
198,000 €
Primal Features
Code:
SARONNO 16Dpn
City:
Saronno (Centro)
Category:
1 bedroom apartment
Locals:
2
Bedrooms:
1
Bathrooms:
1
Sqm:
71
Garages:
1
sqm Terrace:
20
Floor:
3
Energetic class:
A3
20
Property Conditions:
Next Realization
Rank:
Elegant
Position:
Center
View:
Open View
Orientation:
North West South East
Free Sides:
2
Garden:
No
Furniture:
Not Furnished
Type living:
Double
Kitchen:
View Kitchen
Heating:
Calories Counter
Heating Type:
Heat Pump
Type of heating system:
Air heating
Energy source:
PV
Hot Water:
Independent
Cooling:
Split
Fixtures:
Aluminium Double Glazing
Doors:
New
Blind:
Metal blind
Floors Living Room:
Porcelain
Floors Bedrooms:
Porcelain
Floors Kitchen:
Porcelain
Floors Bathroom:
Porcelain
Access for disabled:
No barrier
Disabled internal access:
Full access
Insulation:
Present
Thermal insulation:
External insulation
Acoustic insulation:
Wall insulation
Insulation thickness (cm):
14
For residents only:
Yes
Irrigation system:
Yes
MV:
Yes
Accessories
Alarm
Cupboard
Elevator
Handicap Bathroom
Electric gate
Double Glazing
Optical Fiber
Home Automation System
Photovoltaic
Satellite System
Park Condominium
Pedestrian Crossing
Armored door
Network Data
Electric shutters
Video Intercom
Video Surveillance
Map
Via Don Silvio Marzorati, 12 - Saronno (VA)
Distances
Position
City center500 m
Public park50 m
Education
Kindergarten1 m
Floorplans
Cookie preference